Warning: mkdir(): No space left on device in /www/wwwroot/T3.COM/func.php on line 127

Warning: file_put_contents(./cachefile_yuan/5ashuiguanjia.com/cache/74/201d8/a4d83.html): failed to open stream: No such file or directory in /www/wwwroot/T3.COM/func.php on line 115
 振動篩行業-提升給料輸送行業新聞-


    1. 好色APP先生下载,好色先生免费下载,好色先生下载污,好色先生TV成人APP

      歡迎來到網站

      振動篩行業-提升給料輸送行業新聞

      • 螺旋輸送機如何清理粘壁

        螺旋輸送機如何清理粘壁 螺旋輸送機看起來很簡單,畢竟好色APP先生下载可以看到這些產品結構並不複雜。與那些傳統的機械機床相比,輸送機無論是從傳動原理、部件還是結構複雜程度來說,都是比較簡單的產品,這也使得好色APP先生下载更傾向於使用產品。 螺旋輸送機啟動前,要仔細的檢查它,防止異物落入輸送機,造成螺旋板損壞或螺旋軸斷裂,然後清潔設備內部。材料通過螺旋葉片運輸,因此材料不會隨著螺旋輸送機葉片旋轉的力是材料本身的重量和螺旋輸送機殼對材料的摩擦力。 螺旋輸送機是一種輸送設備,設備中一定量的物料在使用後不完全排出是必然的

      • 4類好色先生下载污安裝位置

        4類好色先生下载污安裝位置 好色先生下载污的安裝位置需要依據使用需求來確定,不可簡單決定,有三種主流安裝模式以及一種特殊安裝模式。 (1)安裝在箱體上側(上振式) 這種裝置方法比較特殊,關於直線篩設備的出料口高度、寬度都有要求的企業,如要求出料口離地麵的高度要盡 量低一些等,那麽振蕩電機不論是裝置在底部還是兩側都不能達到要求,這時就可以將振蕩電機裝置在設備的頂部中間方位,這樣既不增加設備的寬度,又不影響下降設備出料口的高度。這種裝置方法在重型好色先生下载污最為常見,如礦篩、脫水篩。 (2)箱

      • 安裝振篩機時如何調整篩箱的縱向傾斜度

        安裝振篩機時如何調整篩箱的縱向傾斜度 跟著科學技術的前進,許多工業領域將運用振篩機。 順暢運用和裝置是許多企業重視的問題。 今天,新鄉市好色APP先生下载機械有限公司將告訴您如何裝置振篩機以節省時間和精力。 將振篩機盒裝置到支架或懸架上。 裝置後,應根據指定的傾斜視點進行調整。 對於懸掛式篩網,應一起調整篩箱傾斜度和篩箱主軸水平。 通常,首要調節水平高度以消除篩箱的偏轉。 水平校正後,調整篩箱的縱向傾斜度。 振蕩阻隔繃簧的力應該是均勻的,並且能夠經過測量繃簧的緊縮來判斷力。 通常,兩組繃簧在進給端

      • 滾筒篩廠家-滾筒篩要想運行穩定擺放角度如何確定?(滾筒篩及價格)

        滾筒篩廠家-滾筒篩要想運行穩定擺放角度如何確定?(滾筒篩及價格) 滾筒篩的安裝步驟是什麽 1、滾筒篩預埋鋼板。安裝前應按設備安裝圖的要求預埋鋼板,要求預埋鋼板的上平麵位於同一平麵上。安裝所需的預埋鋼板、底腳螺栓等均由安裝單位自備。 2、篩體的安裝。根據設備進料口、出料口的位置布置,對篩體安裝位置進行確定。 3、安裝基礎支架。將篩體兩端通過吊裝安裝在基礎支架上,並將篩體安裝角度調整至設計角度,最後進行固定焊接。 4、連接進料口和出料口。 5、連接篩體下部支架密封板。 6、用手轉

      • 滾筒篩廠家-滾筒篩型號參數及詳細圖紙和尺寸(滾筒篩型號)

        滾筒篩廠家-滾筒篩型號參數及詳細圖紙和尺寸(滾筒篩型號) 滾筒篩廠家 河南好色APP先生下载滾筒篩,是一代新型的篩料設備。滾筒篩主要有電機、減速機、滾筒裝置、機架、密封蓋、進出料口組成。滾筒篩裝置傾斜安裝於機架上。 電動機經減速機與滾筒篩裝置通過聯軸器連接在一起,驅動滾筒裝置繞其軸線轉動。當物料進入滾筒裝置後,由於滾筒裝置的傾斜與轉動,使篩麵上的物料翻轉與滾動,使合格物料經滾筒外圓的篩網排出,不合格的物料經滾筒末端排出。 滾筒篩工作原理 由於物料在滾筒內的翻轉、滾動,使卡在篩孔中的物料可被彈出,防止

      • 滾筒篩廠家-滾筒篩沙機-原理特點介紹

        滾筒篩廠家-滾筒篩沙機-原理特點介紹 滾筒篩廠家簡述滾筒篩沙機原理特點 滾筒篩沙機廣泛用於混凝土攪拌站站、路橋工程、建築工程施工、采競技場、煤場、糧管所等,是節省人力資產提高 建築施工品質,可對河沙、強風化砂、體製沙石等原料進行二次清理工作中。加快工程進度、提高經濟效益的工業設備。按動力係統分為電動篩沙機和柴油發動機篩沙機:按給料的是是多少分為16-20型篩沙機、30型篩沙機和50型篩沙機。 滾筒篩沙機由電機、輸送皮帶、料鬥、傳篩、傳送杆等一部分組成,是石料、煤炭、細砂等-切混料的選擇提

      • 往複式給料機廠家解說其必須了解的特點(往複式給料機的設計)

        往複式給料機廠家解說其必須了解的特點(往複式給料機的設計) 有朋友問往複式給料機廠家解說其必須了解的特點今天針對這個問題做下分享,讓您了解往複式給料機廠家解說其必須了解的特點相關信息和答案! 自流往複式給料機是為滿足大流量物料輸送要求而研製的新型給料機。其新穎的工作原理和結構形式,不但能滿足大流量給料係統的需要,而且與K型往複式給料機相比,極大提高了整機工作效率和工作可靠性,擴大了給料量的調節範圍,具有顯著的節能優點。 (1)相對於以往K係列給料機而言,其生產能力大,體積小、重量輕,便於

      • 雙質體振動放礦機與振動給料機有哪些區別?(雙質量振動係統狀態方程)

        雙質體振動放礦機與振動給料機有哪些區別?(雙質量振動係統狀態方程) 有朋友問雙質體振動放礦機與振動給料機有哪些區別?今天針對這個問題做下分享,讓您了解雙質體振動放礦機與振動給料機有哪些區別?相關信息和答案! 雙質體振動放礦機與振動給料機有哪些區別? FZC振動放礦機是一款口碑極好的振動給料機,該設備利用振動電機主軸兩端的偏心塊在旋轉運動中所產生的離心力來得到激振力,從而驅動設備的台麵和物料作周期性往複振動,不僅出礦效率高,而且還保證了出料均勻容易控製,是一款節省能源的好設備。 振動放礦

      • 礦用脫水篩出料慢的原因是什麽?(脫水篩 給料機)

        礦用脫水篩出料慢的原因是什麽?(脫水篩 給料機) 有朋友問礦用脫水篩出料慢的原因是什麽?今天針對這個問題做下分享,讓您了解礦用脫水篩出料慢的原因是什麽?相關信息和答案! 好色APP先生下载分享過一篇有關脫水篩網緩慢排出原因的文章,但沒有告訴您解決方案之前,現在我將向所有人解釋關於緩慢排出的解決方案,以便每個人都可以盡早預防並且可以 解。 如何解決礦用脫水篩使用過程中排料緩慢的問題? 1、礦用脫水篩無法起動或者振幅過小,應首先考慮電機有無損壞,或者線路中的元件有無損壞,也可能當時當地的電壓不足,假如這三

      • 減少振動給料機傳送帶調試和安裝過程中出現故障的方法

        減少振動給料機傳送帶調試和安裝過程中出現故障的方法 當振動機運行時,通常會有很多問題。如果振動給料機正在運行,有時會出現諸如傳送帶偏斜和物料飛散的問題。 那麽,如何在輸送機運行時減少故障的發生呢? 本文介紹了減少傳送帶調試和安裝過程中出現故障的方法。 振動給料機的常見故障是:物料飛散,運輸不穩定,輸送能力降低以及輸送軸磨損。 隻有原因才能更好地解決問題。 安裝振動進紙器時,請將其安裝在平坦的底部。 如果無法確保安裝地板的平整度,可以在振動給料機的進料槽周圍安裝材料攔截裝置,以防止鑽孔分散。

      • 不鏽鋼三次元好色先生免费下载好色先生免费下载的特點有哪些?

        不鏽鋼三次元好色先生免费下载好色先生免费下载:優質振動篩分設備的首選 不鏽鋼三次元好色先生免费下载好色先生免费下载是一種高效的振動篩分設備,被廣泛應用於醫藥、化工、食品等行業中。它可以快速的對各種形態的材料進行篩分,起到高效率的分離作用,是優質振動篩分設備的首選。下麵好色APP先生下载將詳細介紹不鏽鋼三次元好色先生免费下载好色先生免费下载。 不鏽鋼三次元好色先生免费下载好色先生免费下载采用了一種獨特的好色先生免费下载分技術,它采用三次元振動篩分,振動頻率高、篩分效果好。它的篩分效率高,篩分精度高,可以快速的對各種形態、不同粒度的材料進行篩分。 不鏽鋼三次元好色先生免费下载好色先生免费下载采用了不鏽鋼材質,具有

      • 方形搖擺篩的產量到底有多少呢?

        方形搖擺篩是一種常見的篩分設備,廣泛應用於化工、食品、冶金、建築材料等領域。它主要是通過方形篩體的搖動,使物料在篩網上進行篩分,從而達到分離不同粒度物料的目的。市場上有各種規格和型號的方形搖擺篩,不同的型號和規格對於產量也會有所不同,那麽方形搖擺篩的產量到底有多少呢?下麵好色APP先生下载來詳細講解一下。 首先,方形搖擺篩的產量受到多種因素的影響,包括篩網孔徑、喂料方式、物料特性、篩分時間、振幅等等。在設計方形搖擺篩時需要考慮到以上因素,並根據實際生產需要進行合理的優化和調整,以達到最高的產量和最好的篩分

      • 如何安裝好色先生下载污激振器?

        如何安裝好色先生下载污激振器? 如何安裝好色先生下载污激振器? 好色先生下载污利用振動電機激振作為振動源,使物料在篩網上被拋起,同時向前作直線運動,由此可見好色先生下载污的激振器也是振動電機為篩分重要位置。 好色先生下载污主要由箱體、傳動軸、傳動齒輪、滾動軸承、偏心塊和防護罩等組成。傳動軸有主動、從動之分,主動軸軸端有傳動套和端蓋與萬向傳動軸聯接。激振器的作用是為振動篩提供激振力,並決定了好色先生下载污的振動頻率和振幅。那麽怎麽樣安裝好色先生下载污激振器呢? 一、合套主動軸(同理合套從動軸) 二、壓裝準備工作

      • 轉鬥提升機的調試順序有哪些?

        轉鬥提升機的調試順序 好色APP先生下载知道,鬥式提升機是一種專門對物料進行垂直輸送的設備,利用鬥式提升機可以實現對多種物料進行高距離輸送,而且效率非常高。操作者在操作鬥式提升機時,需要注意的問題不少,而首先需要操作者的問題就是鬥式提升機不能在負載下啟動,這樣的話是非常危險的情況,萬萬不可如此!鬥式提升機在啟動的時候一定要空載啟動,並且啟動的時候還不能急於的輸送物料,要先讓設備空轉兩三分鍾之後再輸送物料,這樣做的目的就是為了防止一些故障的發生,如果鬥式提升機在負載下啟動,設備會啟動的比較的困難,會增大電動

      • 轉鬥式鬥式輸送機有哪些特點?

        轉鬥式鬥式輸送機 NE型鬥式提升機是一種常見的鬥式提升機類型,這種鬥式提升機已經作用於很多行業當中。出色的物料提升性能深受朋友們的青睞。而好色APP先生下载要選購鬥式提升機時,假如要選擇NE型鬥式提升機,就要考慮很多問題,其中,NE型鬥式提升機選型原則就需要好色APP先生下载注意。接下來,小編講講NE型鬥式提升機選型原則。轉鬥式鬥式輸送機NE型鬥式提升機選型原則:1、原始參數:物料名稱,物料特性(粒度mm、鬆散密度t/m3、溫度、濕度、粘性、磨琢性等),輸送量m3/h,提升高度。 例如:型號:NE50 輸送物料:石灰石

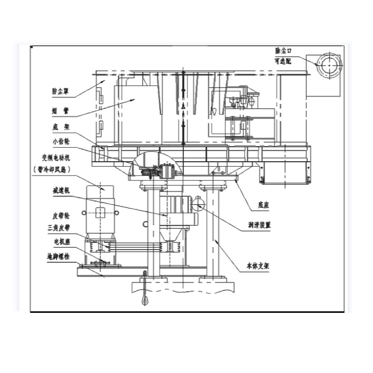
      • 圓盤給料機的內部構造(圓盤給料機的內徑是多少)

        圓盤給料機的內部構造(圓盤給料機的內徑是多少) 有朋友問圓盤給料機的內部構造今天針對這個問題做下分享,讓您了解圓盤給料機的內部構造相關信息和答案! 圓盤給料機結構稍複雜,由圓盤,電動機,減速裝置,般套,刮板和給料調節裝置以及槽鋼柱等構成。由懸吊的電動機,經過三角皮帶,蝸輪減速機立軸帶動圓盤旋轉。盤套的下節與蝸輪減速機連接,上節通過槽鋼柱與料倉連接,電動機則通過電動機底座固定在盤套的側麵。因此在整個圓盤給料機都懸吊在料倉的下麵。喂送的物料由料倉下麵的螺旋閘門出來,經由本機的入料管及活動套筒流

      • 圓形不鏽鋼好色先生免费下载振動篩網架有幾種結構?各結構特點(旋鈕不鏽鋼振動篩)

        圓形不鏽鋼好色先生免费下载振動篩網架有幾種結構?各結構特點(旋鈕 不鏽鋼) 有朋友問圓形不鏽鋼好色先生免费下载振動篩網架有幾種結構?各結構特點今天針對這個問題做下分享,讓您了解圓形不鏽鋼好色先生免费下载振動篩網架有幾種結構?各結構特點相關信息和答案! 一、老鬆網架:該網架結構主要是使用鉚釘直接將篩網鉚在網架上,其優勢在於使用壽命長,結實耐用,但由於是鉚釘鉚的,所以更換篩網時不能實現快速更換,由於是使用鉚釘,所以不適合於精細篩網;有φ600、800、1000、1200、1500、1800等,有不鏽鋼、碳鋼、塑料等多種材質

      • 振動電機在振動篩上使用如何調整激震力更合適(振動電機在振動篩上)

        振動電機在振動篩上使用如何調整激震力更合適(振動電機在振動篩上) 有朋友問振動電機在振動篩上使用如何調整激震力更合適今天針對這個問題做下分享,讓您了解振動電機在振動篩上使用如何調整激震力更合適相關信息和答案! 振動篩的轉動方向就是振動電機的轉動方向, 振動方向角是振動方向與篩麵的夾角是物料的拋射角,是物料的拋射角,兩台電機同步、反向旋轉,也就是一個向左、一個向右,當然,這兩台電機必須對稱的裝在同一水平線上,且縱向必須裝在中心線兩側,這樣才能保證左右兩邊的偏重塊力度一樣,好色先生下载污一般是水平

      • 振動平台如何正確的選型和使用注意事項(振動平台怎麽做)

        振動平台如何正確的選型和使用注意事項(振動平台怎麽做) 有朋友問振動平台如何正確的選型和使用注意事項今天針對這個問題做下分享,讓您了解振動平台如何正確的選型和使用注意事項相關信息和答案! 振動台用途特別廣泛小編簡單介紹幾個行業,冶金 、 消失模鑄造、 汽車生產線、混凝土、模擬汽車運輸、灌裝方麵的應用、防護門、水泥人防門、耐火磚、橋梁、化工、塑料、模具、建材、汽車 等需要振實成型的行業或振動使附著在模具上的殘留物質脫落。 選型要點: 1.首先要根據客戶的振實需求確定是選擇二維振動平台還是

      • 振動篩均勻布料器的重要性(振動篩進料如何分布均勻)

        振動篩均勻布料器的重要性(振動篩進料如何分布均勻) 有朋友問振動篩均勻布料器的重要性今天針對這個問題做下分享,讓您了解振動篩均勻布料器的重要性相關信息和答案! 振動篩均勻布料裝置,它是振動篩均勻分料裝置,其特征在於振動篩的進料口上安裝有一個分料板,分料板上從上邊進料端至下邊出料端設有均布的扇形分料槽能夠均勻給料,好色先生下载污是一款高效率、高精度的篩分設備 進料口加裝傘形布料器能有效地防止物料堆積,這一特性是顯而易見的。 1、進料口加裝傘形布料器能有效的使物料在篩麵不了均勻。防止了

      • 烘幹砂振動篩選用直線篩合適嗎?

        烘幹砂振動篩選用直線篩合適嗎?(烘幹沙分目振動篩) 有朋友問烘幹砂振動篩選用直線篩合適嗎?今天針對這個問題做下分享,讓您了解烘幹砂振動篩選用直線篩合適嗎?相關信息和答案! 說起砂子烘幹機相信大家已經不再陌生,它的出現很大程度提高的沙子幹燥的速率,也節約了人力成本,重要的是用機器代替手工,不僅是產量還是質量都發生了翻天覆地的變化,人們從中也獲得了收益。今天好色APP先生下载主要了解砂子烘幹機的振動篩的養護方法。 好色APP先生下载知道振動篩是砂子烘幹機的重要組成部分,缺少了它砂子烘幹機的作業無法順利進行,知道振動篩的

      • 矽沙分級篩分選用方形搖擺篩產量大,精度高

        矽沙分級篩分選用方形搖擺篩產量大,精度高(矽砂指標) 有朋友問矽沙分級篩分選用方形搖擺篩產量大,精度高今天針對這個問題做下分享,讓您了解矽沙分級篩分選用方形搖擺篩產量大,精度高相關信息和答案! 矽沙分級篩分選方形搖擺篩製造玻璃的主要原材料,簡單的說就是含矽的沙,一般的沙都含矽,一般矽含量多的沙才是製玻璃的好原料。正如您所看到的不同的產量需求和不同的篩分目的選用的好色先生下载污存在較大出入,這是其價位高低相差懸殊的直接原因。另外,不同廠家采取的經營手段、生產的矽沙分級篩分選方形搖擺篩質量等不同,

      • 高頻激振器式振動篩維修率低,壽命高的理由

        高頻激振器式振動篩維修率低,壽命高的理由!(高頻振動儀的作用) 有朋友問高頻激振器式振動篩維修率低,壽命高的理由!今天針對這個問題做下分享,讓您了解高頻激振器式振動篩維修率低,壽命高的理由!相關信息和答案! 高頻激振器式振動篩在使用前調整和測試各種產品的振動篩設備,以使工作更好。 各種類型的執行器通過不同的組合產生不同的機械效果。 無論是軸偏心輪還是整體偏心輪,所有單軸激勵器都會驅動相應的設備進行近似圓周運動。 兩個相同類型和大小的兩個雙軸致動器或兩個單軸振動器並排放置。 然後,煙囪沿相反

      • 石膏粉超聲波好色先生免费下载分機行業應用

        石膏粉是五大凝膠材料之一,在國民經濟中占有重要的地位,廣泛用於建築、建材、工業模具和藝術模型、化學工業及農業、食品加工和醫藥美容等眾多應用領域,是一種重要的工業原材料。 石膏粉的應用越來越廣泛,不止局限於早期的粉筆、膩子、豆腐及工藝品,現在已經擴展到很多行業,並帶動了許多新興產業的發展。伴隨著石膏粉應用行業的發展,各種石膏粉生產廠家也越來越多,石膏粉振動篩' target='_blank'超聲波振動篩分機的需求量也增多,下麵就由新鄉大漢振動有限公司帶您了解一下石膏粉超聲波振動

      • 煤氣振動篩生產廠家解說工藝應用流程

        振動篩在煤礦生產中的應用主要是粗略的處理量大的篩分,在煤氣生產工藝中同樣要用到振動篩分機, 並且用到的精細篩分設備用於處理25MM以下的煤粉。 1煤處理工藝 兩段式煤氣發生爐分上、下兩段煤氣,煤塊過細將增大爐膛的阻力,上段煤氣無法排出,所以需將原煤進行篩分處理,篩分的過程主要是將原煤通過震動篩篩除25mm以下的煤粉,經處理後的煤通過輸送帶送入煤氣發生爐煤倉。在煤的篩分過程中會產生粉塵,建設方采用大風量引風機收集粉塵,廢氣通過旋風、水膜二級除塵後排放。 2煤氣生產工藝 兩段式煤氣發生爐為

      • 常見的帶式輸送機出現故障的處理方法(帶式輸送機包括哪些裝置和主要部件)

        常見的帶式輸送機出現故障的處理方法(帶式輸送機包括哪些裝置和主要部件) 帶式輸送機在我國具有古老的曆史,很久以前就是用輸送機的原型——高輥和水電梯進行工作.能夠連續的、在的線上工作的,就是輸送機原型.現代輸送機能夠承受很大的壓力、並且運送的距離也長.那麽在好色APP先生下载生活中,帶式輸送機出現故障該怎麽辦呢? 在輸送過程中還可以完成多個工序,因而得到廣泛應用.帶式輸送機是一種連續輸送物料的物料搬運機械,也稱連續帶式輸送機.帶式輸送機可以水平傾斜.而垂直運輸,也可以形成空間運輸線,輸電線路通常是固定的.

      • 星型卸料器外殼破損怎麽辦(星形卸料器)

        星型卸料器外殼破損怎麽辦(星形卸料器) 今天好色APP先生下载機械的小編給大家介紹下 星型卸料器外殼破損怎麽辦呢,下麵開始給大家介紹下: 星型卸料器器壁在總是卸料摩擦外殼會磨破,造成漏料。卸料器是各種除塵設置裝備部署排灰工藝中非常緊張的一個構成部門,其包管了密封倉和一連或中斷排灰的作用;在高負電除塵器灰鬥保存肯定高度的灰柱具有明顯的密封作用.其呆板有布局緊湊、造型雅觀、利用方便、運轉安穩、噪音低等一係列的長處。星型卸灰閥在利用上也常常會出現漏料的題目,這是由於葉輪的卸料器器壁毗連處漏洞太大,卸料時容易漏

      • 影響有軸螺旋輸送機的輸送能力的原因是什麽(曲軸的軸向竄動會破壞曲柄連杆機構的)

        影響有軸螺旋輸送機的輸送能力的原因是什麽(曲軸的軸向竄動會破壞曲柄連杆機構的) 影響有軸螺旋輸送機的輸送能力的原因是什麽 基於螺旋輸送機廠家生產的有軸螺旋輸送機的輸送量大,輸送效率高,受到了廣大客戶的喜愛,為廠家的首選機械產品。下麵小編給大家介紹下,如果有軸螺旋輸送機輸送能力變差了,是什麽原因引起的。 和其它糧食輸送機相比,有軸螺旋輸送機的輸送效率更高,這種有軸螺旋輸送機更加適合煤炭行業、電力行業等輸送量較大的輸送行業。除此之外,有軸螺旋輸送機的環保性能也是一個非常大的優勢,非常符合現在

      • 怎樣計算螺旋輸送機的輸送量(怎樣計算螺旋輸出電流)

        怎樣計算螺旋輸送機的輸送量(怎樣計算螺旋輸出電流) 上章好色APP先生下载介紹了怎樣選擇螺旋輸送機的型號,其中螺旋輸送機的輸送量也在考慮的範圍內,這章,小田給大家介紹下怎麽樣計算螺旋輸送機的輸送量。 螺旋輸送機的輸送量怎麽計算需要考慮到螺旋葉片直徑、螺旋軸轉速、電機功率等方麵的問題,另外和物料的物理性質、給料的方式有關,還有裝填係數的要求也不一樣也會影響輸送量。 1、螺旋直徑的計算: 式中Q----輸送量,t/h; K----物料特性係數; ψ----填充係數; C----傾角係數。 按上式

      • 振動行業小知識之振動給料機的給料過程解析

        振動行業小知識之振動給料機的給料過程解析 給料機一般可以跟振動篩、輸送機等設備一起用,這樣可以連成一條生產線,幫助相關行業節省人力,減少人工開支。今天主要跟大家介紹一下振動給料機的給料過程,現在跟小編一起來看一下吧! 振蕩給料機又稱振蕩喂料機,是使用振蕩器中的偏疼塊旋轉產生離心力,使篩廂、振蕩器等可動部分作強製的接連的圓或近似圓的運動。 振蕩給料機是由給料槽體、激振器、繃簧支座、傳動裝置等組成。槽體振蕩給料的振蕩源是激振器,激振器是由兩根偏疼軸(主、被迫)和齒輪副組成,由電動機通過三角帶

      產品分類
      輕型精細篩分機
      重型礦用振動篩
      輸送機械
      提升機械
      給料機械
      振動電機
      配件及其他設備
      產品推薦
      平麵回轉篩
      刮板輸送機
      Z型提升機
      YK係列圓振動篩
      好色先生下载污
      往複式給煤機
      聯係好色APP先生下载
      Tel/Fax:0373-2495788
      聯係人:苗經理 13782587121
      張濤 13569837649
      郵箱:13782587121@126.com
      地址:新鄉市七裏營鎮南魏莊工業園3號
      微信更方便
      微信更方便
      網站地圖